2025.01.24 01:12 Son Güncellenme: 2025.01.24 01:55 - GÜNDEM
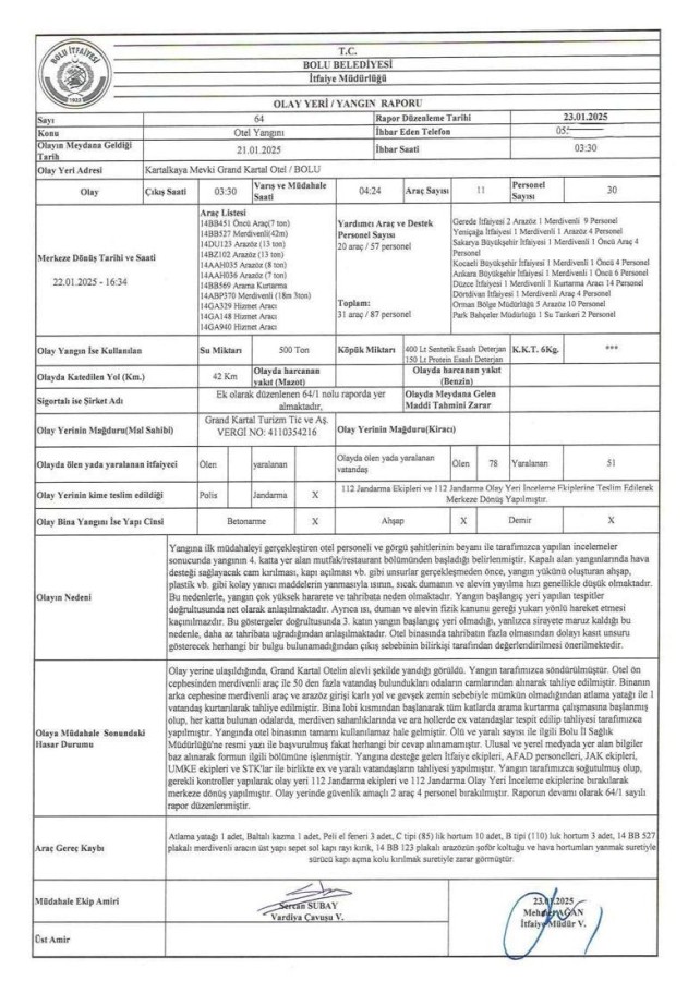
Bolu'da, Kartalkaya'daki Grand Kartal Otel'de 78 kişinin hayatını kaybettiği yangınla ilgili Bolu Belediyesi İtfaiye Müdürlüğü tarafından hazırlanan itfaiye ön raporunda, 50'den fazla kişinin camlardan merdivenli itfaiye aracıyla, 1 kişinin de atlama yatağıyla kurtarıldığı belirtilerek "Yangına ilk müdahaleyi gerçekleştiren otel personeli ve görgü şahitlerinin beyanı ile tarafımızca yapılan incelemeler sonucunda yangının 4'üncü katta yer alan mutfak/restoran bölümünden başladığı belirlenmiştir" ifadelerine yer verildi.
Kent merkezine 38 kilometre mesafedeki 2 bin 200 rakımlı Köroğlu Dağlarındaki 5 otelden 1'i olan Grand Kartal Otel'de gece saatlerinde yangın çıktı. Otelin ana giriş kapısına göre eksi 1, arka giriş kapısına göre 4'üncü katında bulunan restoran kısmında çıkan yangında alevler, kısa sürede büyüdü. Saat 03.21'de 112 Acil Çağrı Merkezi'ne yapılan ihbar üzerine bölgeye ekipler sevk edildi. Yangın, itfaiyenin 11 saatlik çalışma sonucu söndürüldü. Yangında 78 kişi hayatını kaybetti. Olayla ilgili başlatılan soruşturmada 12 şüpheli, gözaltına alındı.

İTFAİYE ÖN RAPORU HAZIRLANDI: 500 TON SU KULLANILDI
Bolu Belediyesi İtfaiye Müdürlüğü tarafından yangınla ilgili ön rapor hazırlandı. Raporda, Saat 03.30'da ilk ihbarın ulaştığı, 11 araç ve 30 personelle itfaiye ekiplerinin yola çıkmasının ardından 42 kilometre yol kat ederek saat 04.24'te olay yerine ulaşıldığı belirtildi. Söndürme çalışmalarında 500 ton suyun kullanıldığının belirtildiği raporda, yangının nedenine ve yaşananlara ilişkin şu ifadeler yer aldı:
"Yangına ilk müdahaleyi gerçekleştiren otel personeli ve görgü şahitlerinin beyanı ile tarafımızca yapılan incelemeler sonucunda yangının 4'üncü katta yer alan mutfak/restoran bölümünden başladığı belirlenmiştir. Kapalı alan yangınlarında hava desteği sağlayacak cam kırılması, kapı açılması ve bunun gibi unsurlar gerçekleşmeden önce, yangın yükünü oluşturan ahşap, plastik vb. gibi kolay yanıcı maddelerin yanmasıyla ısının, sıcak dumanın ve alevin yayılma hızı genellikle düşük olmaktadır. Bu nedenlerle, yangın çok yüksek hararete ve tahribata neden olmaktadır. Yangın başlangıç yeri yapılan tespitler doğrultusunda net olarak anlaşılmaktadır. Ayrıca ısı, duman ve alevin fizik kanunu gereği yukarı doğru hareket etmesi kaçınılmazdır. Bu göstergeler doğrultusunda 3'üncü katın yangın başlangıç yeri olmadığı, yalnızca sirayete maruz kaldığı bu nedenle daha az tahribata uğradığı anlaşılmaktadır. Otel binasında tahribatın fazla olmasından dolayı kasıt unsuru gösterecek herhangi bir bulgu bulunmadığından çıkış sebebinin bilirkişi tarafından değerlendirilmesi önerilmektedir."

'50'DEN FAZLA VATANDAŞ CAMLARDAN KURTARILDI'
50'den fazla kişinin merdivenli itfaiye aracıyla otelin camlarından, 1 kişinin de atlama yatağı ile kurtarıldığının belirtildiği raporda, "Olay yerine ulaşıldığında Grand Kartal Otel'in alevli şekilde yandığı görüldü. Yangın tarafımızca söndürülmüştür. Otel ön cephesinden merdivenli araç ile 50'den fazla vatandaş, bulundukları odaların camlarından alınarak tahliye edilmiştir. Binanın arka cephesine merdivenli araç ve arazöz girişi karlı yol ve gevşek zemin sebebiyle mümkün olmadığından atlama yatağı ile 1 vatandaş kurtarılarak tahliye edilmiştir. Bina lobi kısmından başlanarak tüm katlarda arama-kurtarma çalışmasına başlanmış olup, her katta bulunan odalarda, merdiven sahanlıklarında ve ara hollerde eks vatandaşlar tespit edilip tahliyesi tarafımızca yapılmıştır. Yangında otel binasının tamamı kullanılamaz hale gelmiştir. Ölü ve yaralı sayısı ile ilgili Bolu İl Sağlık Müdürlüğü'ne resmi yazı ile başvurulmuş fakat herhangi bir cevap alınamamıştır. Ulusal ve yerel medyada yer alan bilgiler baz alınarak formun ilgili bölümüne işlenmiştir. Yangına desteğe gelen itfaiye ekipleri, AFAD personelleri, Jandarma Arama Kurtarma(JAK) ekipleri, UMKE ekipleri ve STK'lar ile birlikte eks ve yaralı vatandaşların tahliyesi yapılmıştır. Yangın tarafımızca soğutulmuş olup, gerekli kontroller yapılarak olay yeri 112 jandarma ekipleri ve 112 jandarma olay yeri inceleme ekiplerine bırakılarak merkeze dönüş yapılmıştır. Olay yerinde güvenlik amaçlı 2 araç, 4 personel bırakılmıştır. Raporun devamı olarak 64/1 sayılı rapor düzenlenmiştir."
İşte o rapor;
